Investičná príležitosť – budova v absolútnom centre Kežmarku.

predaj, Polyfunkčný objekt, Hlavné námestie, Čiastočná rekonštrukcia

TOP ponuka
Druh ponuky: Predaj
Mesto/obec: Kežmarok
Druh nehnuteľnosti: Polyfunkčný objekt
Stav nehnuteľnosti: Čiastočná rekonštrukcia
Ulica: Hlavné námestie
Úžitková plocha: 887 m2
Zastavaná plocha: 217 m2
Plocha pozemku: 768 m2
id: 152

Dohodou

Popis nehnuteľnosti:

Budova sa nachádza na Hlavnom námestí, v historickom centre Kežmarku.

Na severnom konci hlavnej ulice sa nachádza hrad Kežmarok, na južnom je radnica.

V lokalite je uzavretá zástavba postavená v 18. a začiatkom 19. storočia s prízemnými a jednoposchodovými, väčšinou pamiatkovo chránenými budovami. Podľa funkcie ide o obytné a komerčné nehnuteľnosti. Na prízemí vznikli stravovacie jednotky či predajne, na poschodí byty či kancelárie. Fasády väčšiny domov sú zrekonštruované a okolie je upravené.

Meštiansky dom sa nachádza na severozápadnej strane Hlavného námestia, ako súčasť uzavretej historickej zástavby. Súčasnú podobu nadobudol koncom 19. storočia prestavbou staršej, renesančnej stavby, ktorá pravdepodobne spájala 2 užšie stredoveké domy.

K budove prislúcha pozemok o rozlohe 768 m2, druh pozemku: zastavaná plocha a nádvorie.

Na pozemok je prístup možný z dvoch strán, z Hlavného námestia a z Kostolného námestia.

Pozemok je v priemere 11 m široký a 65 m dlhý.

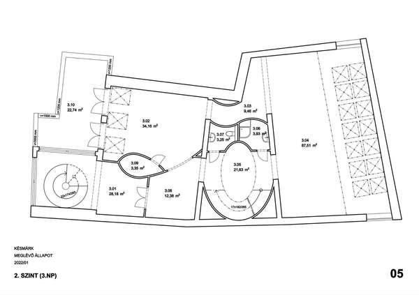
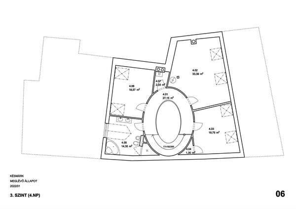
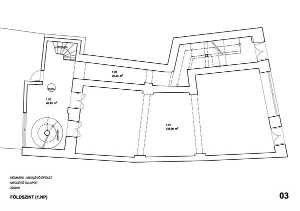
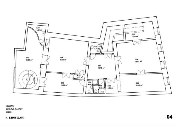
Čistá podlahová plocha budovy je 887 m2 (pivnica, prízemie, poschodie a dve podkrovia). Pivnica je stredovekého pôvodu, prízemie a poschodie boli postavené okolo roku 1910, pričom dve podkrovia boli dostavané v roku 1998.

Rozloha jednotlivých podlaží:

  • 1.PP – 129,83 m2
  • 1. NP – 216,76 m2
  • 2. NP – 196,96 m2
  • 3. NP – 226,59 m2
  • 4. NP – 116,84 m2

Jedná s možnosti využitia je realizácia boutique hotela:

Komfortný hotel môže vzniknúť v existujúcej budove alebo v jej novej prístavbe. Podľa konceptu je na prízemí hotela reštaurácia, kaviareň a recepcia v suteréne wellness.

Prístavbu existujúcej budovy je možné riešiť:

▪ s novou budovou z Kostolného námestia s využitím povolených 50 % zastavanej kapacity

▪ alebo obnovou dvorového krídla, ak je to možné. (viac ako 50 %).

Maklér

Mgr. Tomáš Lukačko


+421 904 563 783

[email protected]

* - povinný údaj

Kliknutím na tlačidlo ODOSLAŤ súhlasíte so spracovaním Vami zadaných údajov za účelom zodpovedania otázky či podnetu adresátom správy, ktorým je Mgr. Tomáš Lukačko - TOM REAL. Bližšie informácie o spracovaní a ochrane osobných údajov nájdete v sekcii "GDPR - Spracovanie osobných údajov".

Mohlo by Vás zaujať

V tejto kategórii