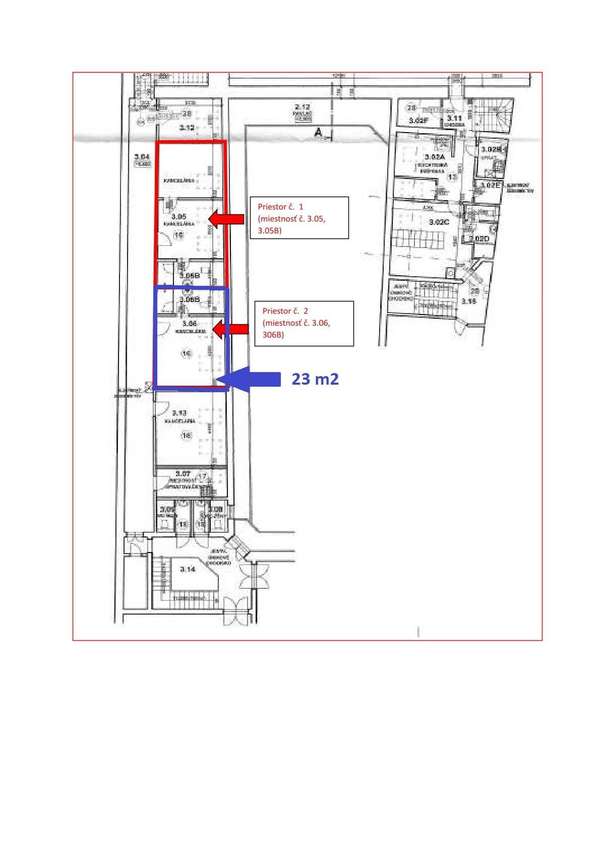
Novo zrekonštruovaná, klimatizovaná kancelária, 23 m2 na Hlavnej ul.

prenajom, Kancelárie, admin. priestory, Hlavná, Kompletná rekonštrukcia

Ihneď voľný
Luxusné
Dobrá ponuka
Druh ponuky: Prenájom
Mesto/obec: Košice - Staré Mesto
Druh nehnuteľnosti: Kancelárie, admin. priestory
Stav nehnuteľnosti: Kompletná rekonštrukcia
Ulica: Hlavná
Úžitková plocha: 23 m2
id: 109

195 /mesiac

Popis nehnuteľnosti:

Novo zrekonštruovaná, klimatizovaná kancelária, 23 m2 na Hlavnej ul.

Ponúkame na prenájom novo zrekonštruovanú, klimatizovanú kanceláriu s vlastnou kúpeľnou /sprchovací kút a WC/.

Jedná sa o miestnosť o celkovej rozlohe 17,3m2 a kúpeľňa o rozlohe 6 m2.

Nachádzajú sa na 2 poschodí /široké schodisko/.

Rekonštrukcia 04/2023.

Cena prenájmu 195 EUR/mesiac + energie + DPH.

Maklér

Mgr. Tomáš Lukačko


+421 904 563 783

[email protected]

* - povinný údaj

Kliknutím na tlačidlo ODOSLAŤ súhlasíte so spracovaním Vami zadaných údajov za účelom zodpovedania otázky či podnetu adresátom správy, ktorým je Mgr. Tomáš Lukačko - TOM REAL. Bližšie informácie o spracovaní a ochrane osobných údajov nájdete v sekcii "GDPR - Spracovanie osobných údajov".

Mohlo by Vás zaujať

V tejto kategórii