Prenájom priestoru v centre, Hlavná ul., prízemie, 34 m2.

prenajom, Obchodné priestory, Hlavná, Kompletná rekonštrukcia

Ihneď voľný
Dobrá ponuka
Druh ponuky: Prenájom
Mesto/obec: Košice - Staré Mesto
Druh nehnuteľnosti: Obchodné priestory
Stav nehnuteľnosti: Kompletná rekonštrukcia
Ulica: Hlavná
Úžitková plocha: 34 m2
id: 175

370 /mesiac

Popis nehnuteľnosti:

Ponúkame na prenájom rekonštruovaný priestor v absolútnom centre mesta na Hlavnej ulici v Košiciach.

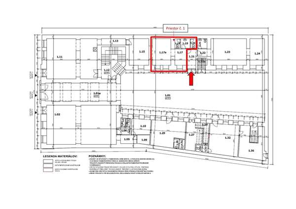
Priestor sa nachádza na prízemí a rozlohu má 34 m2. Umiestnenie priestoru je vo dvore s vysokou frekvenciou ľudí /reštaurácia, obchody, banka .../. Okná do dvora.

Priestor pozostáva z 2 miestností a dvoch samostatných WC /viď pôdorys/.

Priestory sú rekonštruované.

Vhodné využitie na obchod, služby, beauty, kaderníctvo, kanceláriu ...

Výhodou je, že budova je skolaudovaná pre tento typ prevádzky /obchod, služby/.

V minulosti boli v priestore prevádzky kaderníctva, kozmetiky, tetovacieho štúdia, obchodu s oblečením.

Ihneď voľný.

Nájom: 370,- EUR/mesiac bez DPH + média

Maklér

Mgr. Tomáš Lukačko


+421 904 563 783

[email protected]

* - povinný údaj

Kliknutím na tlačidlo ODOSLAŤ súhlasíte so spracovaním Vami zadaných údajov za účelom zodpovedania otázky či podnetu adresátom správy, ktorým je Mgr. Tomáš Lukačko - TOM REAL. Bližšie informácie o spracovaní a ochrane osobných údajov nájdete v sekcii "GDPR - Spracovanie osobných údajov".

Mohlo by Vás zaujať

V tejto kategórii